top of page


1.3 LEVEL 0 FLOOR PLAN


1.4 LEVEL 0 FLOOR PLAN

4 Naylors Farm
Cottages
Revit Project

1.5 3D REVIT MODEL
1.6 3D RENDERED REVIT MODEL


1.1 SECTION AA
1.2 SECTION BB


1.7 PLAN VIEW - LEVEL 0
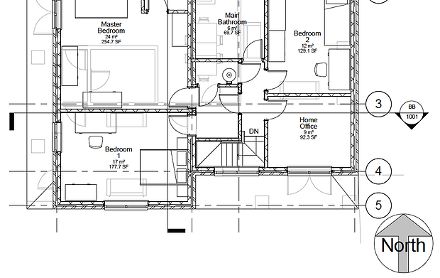
1.8 PLAN VIEW - LEVEL 1







1.9 3D STAIRCASE SECTION
1.10 FLOOR TO ROOF SECTION
1.11 FRONT DOOR CUT THROUGH SECTION
1.12 EXTERNAL & INTERNAL WALL SECTION
ALSO SHOWING WINDOW DETAIL
WEST ELEVATION
NORTH ELEVATION
SOUTH ELEVATION
EAST ELEVATION
LAURA POMFRET
bottom of page